Life style in the ski area Kronplatz Four-room flat

39030 Valdaora (BZ)

Basic data

Rooms
4
Floor
duplex
Living area
84 m2
Sales area
110 m2
Year of construction2004
Bathrooms2
Conventional unconventional (South Tyrol)
Liftno
Energy class B (< 50 kWh)
Selling price on request

Description

Non-restricted Duplex Apartment for Sale in Niederolang

This well-laid-out, non-restricted duplex apartment is for sale in Niederolang, in an attractive location close to the Kronplatz (Plan de Corones) ski area.

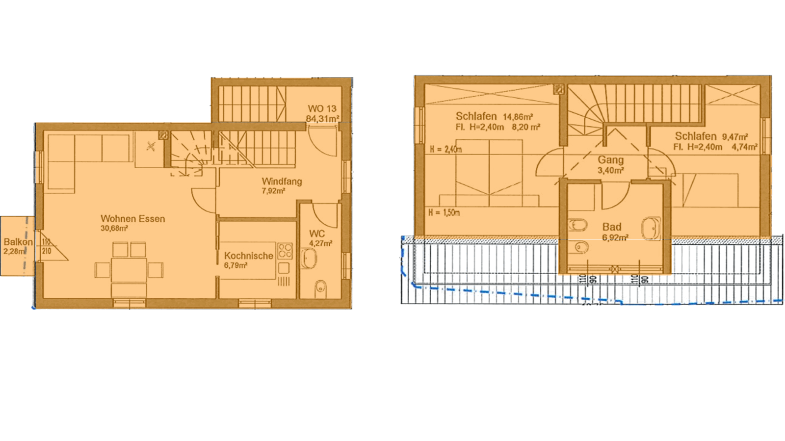
The property is arranged over two levels. On the main floor it features a spacious living area with fireplace, a separate eat-in kitchen, an entrance hall, and a bathroom with window. An internal staircase leads to the attic night area with two bedrooms and a second bathroom.

The property also includes a large cellar of approx. 29 m² and a garage parking space.

As the apartment is not subject to occupancy restrictions, it is ideal as a holiday home, second residence, or investment property in one of South Tyrol’s most popular ski regions.

Key features:

  • Non-restricted property

  • Duplex on two levels

  • Spacious living room with fireplace

  • Separate eat-in kitchen

  • 2 bedrooms + 2 bathrooms

  • Windowed bathroom

  • Large cellar (approx. 29 m²)

  • Garage parking space included

  • Near Kronplatz ski area

Floor plan

Virtual Tour

You are welcome to request the password for the Virtual Tour:

Request password

Similar objects

Rooms
1
Floor
first
Living area
22,7 m2
Sales area
30 m2
Rooms
3
Floor
ground
Living area
65 m2
Sales area
98 m2
Beautiful Living with a Large Private Garden Piazza Peter Sigmayr, 39030 Valdaora di Mezzo / Valdaora (BZ)
Rooms
3
Floor
ground
Living area
75,7 m2
Sales area
110,4 m2
Light-Filled Apartment with Evening Sun Piazza Peter Sigmayr, 39030 Valdaora di Mezzo / Valdaora (BZ)
Rooms
3
Floor
first
Living area
70,5 m2
Sales area
105,3 m2

Nothing suitable found?

Please feel free to let me know your concerns. I will search for you!